Italiano
HAI UN IMMOBILE DA VENDERE O AFFITTARE?
AFFIDATI ALLA NOSTRA ESPERIENZA!

VILLA A SCHIERA

389.000 €
154 m2
3 Camere
2 Bagni
Codice
V000356
Città
Abbiategrasso
Categoria
Villetta schiera
Spese condominiali
200 €
Locali
4
Box
1
Mq Box
29
Mq Giardino
93,68
Mq Balcone
12
Piano
1
Classe energetica
A1
76,01
Stato Immobile
Ristrutturato
Grado
Medio
Orientamento
Sud Nord
Lati Liberi
2
Giardino
Privato
Arredi
Non Arredato
Tipo Soggiorno
Salone
Tipo Cucina
Abitabile
Riscaldamento
Autonomo
Tipo Riscaldam.
Caldaia a Condensazione
Tipo Impianto
Radiatori
Fonte Energetica
Fotovoltaico
Acqua Calda
Autonoma
Raffrescamento
Split
Infissi
Legno Doppio Vetro
Serramenti
Ottimo
Persiana
Persiana Legno
Pavim. Giorno
Cotto
Pavim. Notte
Parquet
Pavim. Cucina
Cotto
Pavim. Bagno
Ceramica
Accessori
Antifurto, Aria Condizionata, Armadio a Muro, Cancello Elettrico, Doppi Vetri, Lavanderia, Pannelli Solari, Porta Blindata, Ripostiglio, Zanzariere
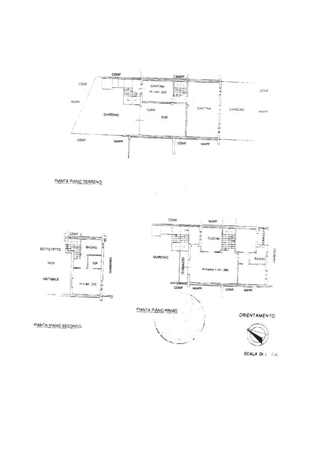
- ABBIATEGRASSO - Raffinata villetta disposta su tre livelli, per una superficie complessiva di circa 150 mq, pensata e realizzata per garantire elevati standard di comfort abitativo e funzionalità degli spazi.
L’ingresso alla proprietà avviene attraverso un cortile privato, curato nei dettagli e in parte arricchito da zone verdi, che introduce armoniosamente all’abitazione. Salendo al piano primo si sviluppa la zona giorno, caratterizzata da un’atmosfera accogliente e ben distribuita: un ampio salone ideale per momenti conviviali, una cucina abitabile separata perfetta per la vita quotidiana e due camere da letto. A servizio di questo livello troviamo un bagno finestrato, pratico e ben posizionato tra le stanze.
La scala interna accompagna al secondo ed ultimo piano, interamente dedicato alla suite padronale, concepita come uno spazio riservato e confortevole. Un disimpegno centrale organizza in modo funzionale gli ambienti: da un lato il bagno con box doccia, dall’altro la camera matrimoniale impreziosita da una comoda cabina armadio. Al piano secondo c'è anche un ripostiglio sottotetto.
La luminosità naturale rappresenta uno dei punti di forza dell’immobile: il piano principale è infatti servito da due balconi con esposizione opposta, che assicurano un’eccellente illuminazione durante tutto l’arco della giornata e un efficace ricambio d’aria.
A completamento della proprietà troviamo un ulteriore piano fuori terra, organizzato in modo versatile e funzionale: garage doppio, locale lavanderia e un ambiente aggiuntivo attualmente adibito a zona relax, con accesso diretto al cortile privato. Quest’ultimo è valorizzato dalla presenza di una pergotenda motorizzata, ideale per vivere gli spazi esterni in ogni stagione.
Inserita in un contesto residenziale composto prevalentemente da ville, l’abitazione garantisce tranquillità e riservatezza senza rinunciare alla comodità dei servizi. Negozi, attività commerciali e collegamenti sono facilmente raggiungibili, anche grazie alla presenza di una pratica pista ciclabile che conduce direttamente al centro cittadino.

L’immobile si presenta in condizioni impeccabili ed è stato oggetto di un’importante riqualificazione energetica nel 2022. Sul tetto è installato un impianto fotovoltaico da 9,2 kW, supportato da un sistema di accumulo con doppia batteria TESLA per una capacità complessiva di 28 kW, oltre a due colonnine dedicate alla ricarica di veicoli elettrici: una soluzione moderna e sostenibile, orientata al risparmio energetico e alla mobilità green.
FINITURE: impianto di climatizzazione con pompe di calore (PDC), scaldacqua a pompa di calore, riscaldamento autonomo con termosifoni in acciaio, porta blindata, infissi in legno con vetrocamera basso emissiva e persiane in legno, zanzariere su tutte le finestre, impianto d’allarme completo, sistema antizanzare esterno con unità centrale Defender System e impianto di videosorveglianza.

Video

Mappa

Via della Pazienza , Abbiategrasso (MI)

Condividi

Cookie preference