Italiano
HAI UN IMMOBILE DA VENDERE O AFFITTARE?
AFFIDATI ALLA NOSTRA ESPERIENZA!

2 VILLE BIFAMILIARI IN FASE DI REALIZZAZIONE

555.000 €
215 m2
3 Camere
3 Bagni
Codice
V000334
Città
Abbiategrasso
Categoria
Villa
Locali
5
Box
2
Mq Box
35
Mq Giardino
160
mq Terrazzo
17
Piano
Terra
Classe energetica
A4
Stato Immobile
In Costruzione
Grado
Signorile
Posizione
Centro
Lati Liberi
3
Giardino
Privato
Arredi
Non Arredato
Tipo Soggiorno
Doppio
Tipo Cucina
Angolo Cottura
Riscaldamento
Autonomo
Tipo Riscaldam.
Pompa di Calore
Tipo Impianto
Pavimento
Fonte Energetica
Fotovoltaico
Acqua Calda
Autonoma
Raffrescamento
Split
Infissi
PVC Doppio Vetro
Serramenti
Ottimo
Persiana
Tapparella Metallo
Pavim. Giorno
Personalizzato
Pavim. Notte
Personalizzato
Pavim. Cucina
Personalizzato
Pavim. Bagno
Personalizzato
Accesso Disabili
Nessuna Barriera
Accesso interno disabili
Non accessibile
Isolamento
Presente
Isolamento termico
Cappotto esterno
Isolamento acustico
Isolamento pareti
Accessori
Antifurto, Aria Condizionata, Cancello Elettrico, Doppi Vetri, Fibra Ottica, Impianto Fotovoltaico, Lavanderia, Pannelli Solari, Porta Blindata, Tapparelle Elettriche, Video Citofono, Zanzariere
- ABBIATEGRASSO - In Costruzione – Ville bifamiliari in Classe A4 con ampi spazi interni ed esterni

In tranquilla e riservata zona residenziale, proponiamo due eleganti ville bifamiliari di prossima costruzione, progettate per garantire il massimo comfort abitativo e un’elevata efficienza energetica.

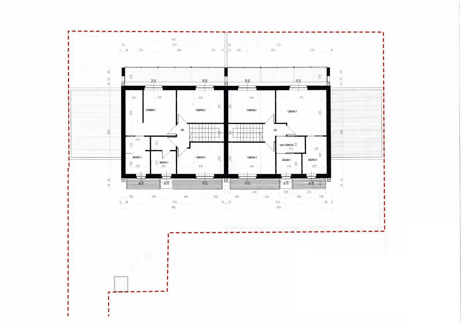
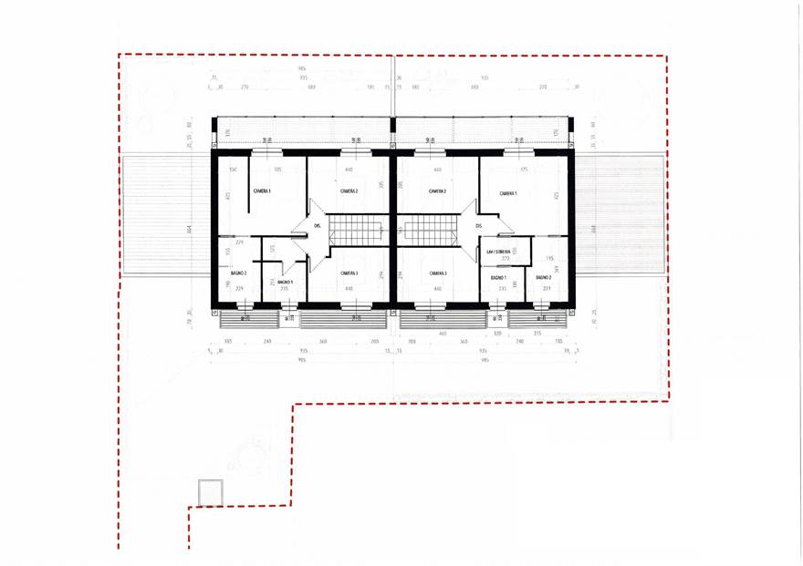
Ogni unità, libera su tre lati, si sviluppa su due livelli abitativi per una superficie complessiva di circa 215 mq, con ampia possibilità di personalizzazione del capitolato.

Al piano terra, troviamo un ingresso indipendente, un luminoso e spazioso soggiorno doppio, una comoda zona cottura, un bagno finestrato e uno studio, ideale anche come stanza per ospiti o smart working.

Al primo piano, la zona notte è composta da tre ampie camere da letto, doppi servizi finestrati, una pratica lavanderia e un grande terrazzo di 16 mq, perfetto per momenti di relax all'aperto.

Completa la proprietà un giardino privato di circa 160 mq, disposto su tre lati, che offre privacy e la possibilità di vivere gli spazi esterni in ogni stagione.

Incluso nel prezzo, un ampio box di circa 35 mq, ideale per due auto e spazio accessorio.

Le ville saranno realizzate in Classe Energetica A4, con tecnologie all’avanguardia per il risparmio energetico:
Riscaldamento a pavimento alimentato da pompa di calore,
Impianto fotovoltaico per la produzione di energia elettrica,
Cappotto termico per un eccellente isolamento,
Serramenti ad alta efficienza, predisposizione per ventilazione meccanica e domotica.

Un’occasione imperdibile per chi cerca una soluzione abitativa moderna, efficiente e completamente personalizzabile.
Contattaci per maggiori informazioni, visionare i progetti e scoprire tutte le finiture disponibili.

Mappa

Via Leonardo da Vinci , Abbiategrasso (MI)

Condividi

Cookie preference